PROPERTY SUMMARY
PROPERTY DESCRIPTION
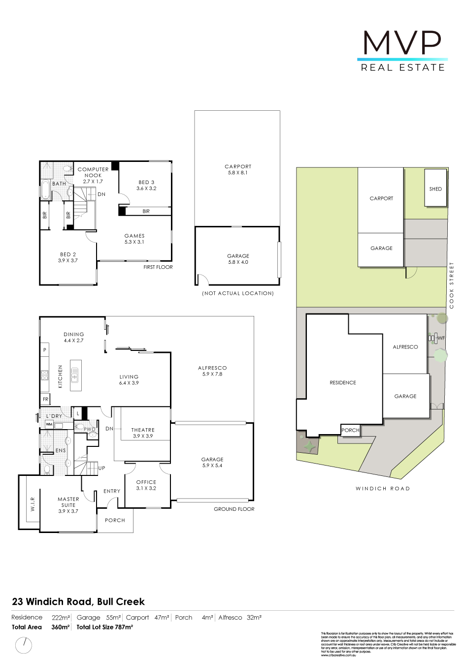
A very rare opportunity in sought after Bull Creek awaits… subject to WAPC approval under their corner Lot ruling, this is a potential “subdivide and retain” site on a level, corner block where the home you can retain is a 2011 built double storey, 3 bedroom, 2 bathroom family home with study and double lock up garage!
Good luck finding another similar to this!!
Features include:
• Study off the entry which has direct access to the garage
• Master bedroom with walk-in robe, ceiling fan and ensuite
• Ensuite with double vanity, twin shower and wc
• Theatre room
• Powder room
• Open plan kitchen / meals / family room
• The kitchen has a 900mm gas cook top, 900mm oven, 900mm rangehood, engineered stone bench top with waterfall ends, dishwasher and plumbing for the fridge
• Laundry off the kitchen
…upstairs:
• Two generous minor bedrooms, both with built-in robes and ceiling fans
• Semi-ensuite bathroom with shower, vanity and bath
• Living room (or convert into another bedroom?)
• Drop down ladder to storage in the roof space
…but wait, there’s more:
• Ducted reverse cycle air conditioning
• Re-painted in late 2022
• Alarm and security cameras
• Entertaining area with 100mm Stratco insulated panels, Outback louvered sun roof, electric blinds and two ceiling fans
• Large tranquil fountain
• Double lock up garage with drive through rear access
• Separate rear access down the side of the garage
• Separate rear access into the original garage off Cook Street
• Additional carport space for three more cars alongside the original garage
• Bore reticulation
Situated on a 797sqm corner block zoned R20, this 2011 home was designed and built to suit a future subdivision whereby someone could retain the existing home and create a 350 – 400sqm block on Cook Street (subject to WAPC approval).
Alternatively, keep the site as it is and have plenty of room for the kids or four-legged family members to run around, or perhaps add in a pool or build a granny flat for family members or to lease out… it’s nice to have options!
Located within close proximity to public transport, shopping, restaurants, schools (Leeming SHS catchment, but not too far from Corpus Christi College or All Saints College), medical facilities such as Fiona Stanley Hospital and St. John of God Hospitals, and much more.
For further information, or to make your offer and take advantage of this super-rare opportunity, please call Leigh Moore or Dino Valerio today.
*Information Disclaimer: This document has been prepared for advertising and marketing purposes only. It is believed to be reliable and accurate, but clients must make their own independent enquiries and must rely on their own personal judgment about the information included in this document. MVP Real Estate provides this document without any express or implied warranty as to its accuracy or currency. Any reliance placed upon this document is at the client’s own risk. MVP Real Estate accepts no responsibility for the results of any actions taken, or reliance placed upon this document by a client.




































